تصفح الكمية:0 الكاتب:D & D الأجهزة نشر الوقت: 2018-01-16 المنشأ:D&D Hardware
عند شراء أجهزة الباب، يجب أن تعرف بابك. هنا أنواع مختلفة منباب حديد.
1.Steel الخشب العزل الحراري باب النار

1.1 مخطط باب حراري عزل حراري من الخشب


2. الصلب عزل حرارة الباب النار

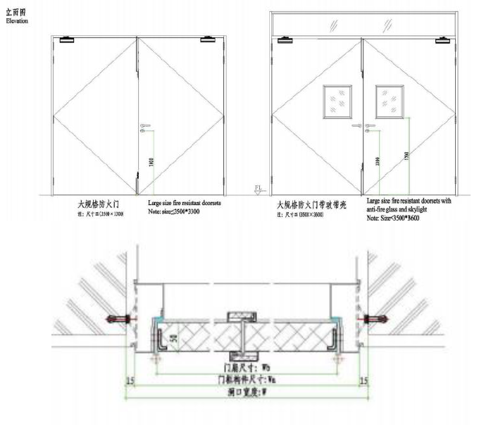
2.1 مخطط باب حراري عزل حراري


3. الصلب العزل الحراري النار الهروب الباب

3.1 الرسم البياني من الصلب العزل الحراري النار النار الباب


4. زجاج عزل حراري باب النار

4.1 الرسم البياني للزجاج


5. باب الصلب الأخرى

تتمتع أجهزة D & D بأكثر من 12 عاما من تجارب تصنيع وتضخم منتجات الأجهزة المعمارية للأبواب المعدنية في الصين، وتشمل منتجاتنامفصلات الباب الفولاذ المقاوم للصدأ، أقفال الباب، رافعة مقابض، باب الأقارب، أجهزة الخروج، سداد الباب, باب البراغيوملحقات البابالخ، ليس فقط أجهزة الباب ولكن أيضا حل فتح الباب.
: + 139-86 2903 7292
: + 139-86 2903 7292